Key themes revolve around site analysis (including geotechnical data), building area calculations (net and gross), and adherence to relevant building codes and standards (e.g., IBC, ACI, and ADA). 
The purpose is to provide a comprehensive design package demonstrating the team’s understanding of integrated building systems, encompassing architectural, structural, and MEP considerations.
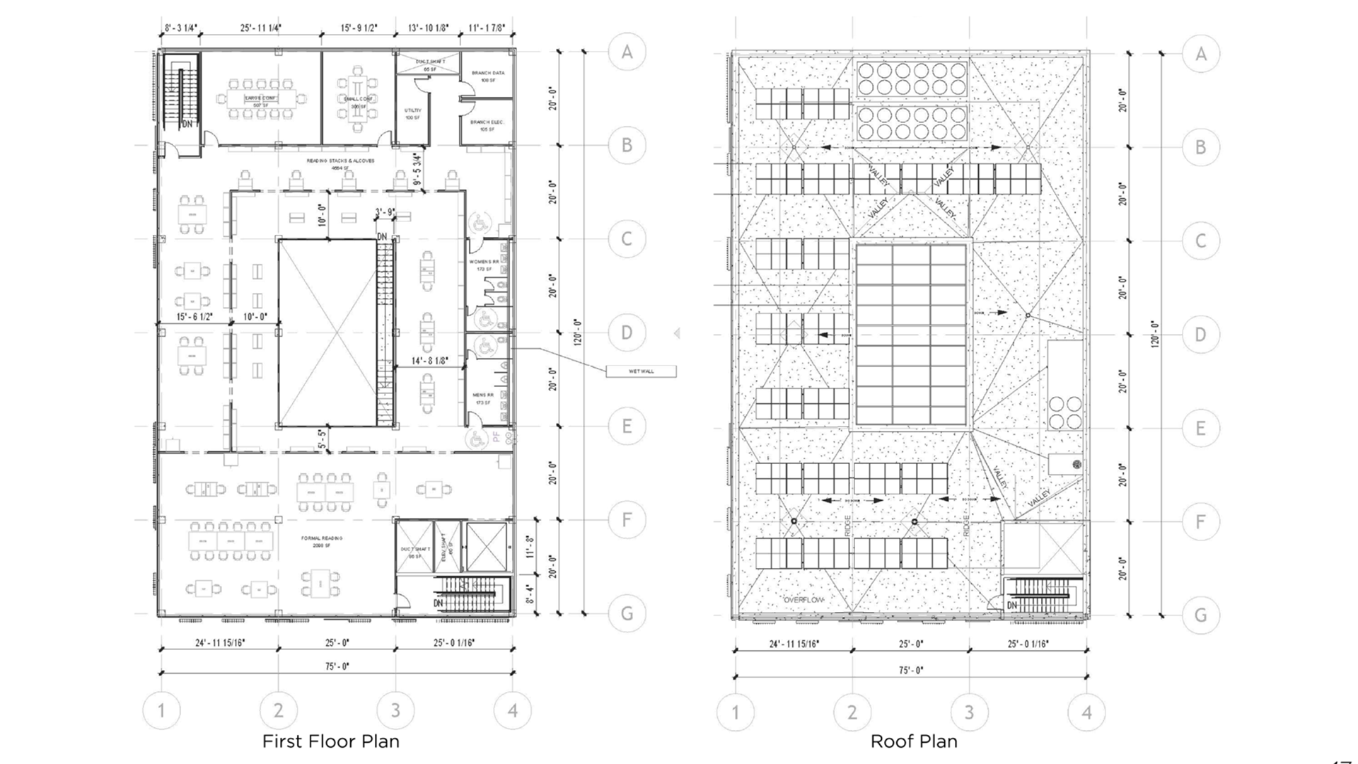
FLOOR PLANS

STRUCTURAL FRAMING OF THE BUILDING

FLOOR TO WALL DETAIL

You may also like

Back to Top